Prodej domu 215 m²
Scheinerova, Brno – LíšeňNa tento inzerát reagoval 1 zájemce.
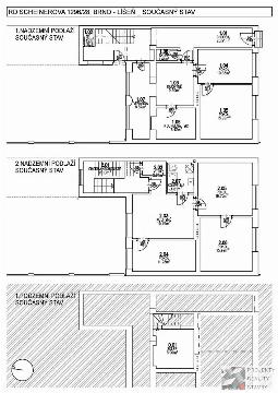
Nabízíme k prodeji částečně podsklepený řadový dvoupodlažní dům s nevyužívanou půdou se 2 bytovými jednotkami v Brně - Líšni na ulici Scheinerova.
Stávající zastavěná plocha RD: 99,5 m²
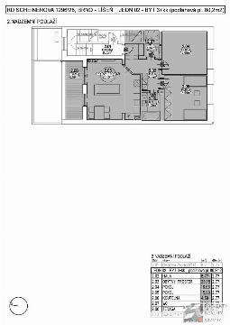
Dispozice (podlahové plochy) stávajících jednotek :
byt 01 2+1 v 1. np: 55m²
byt 02 3+1 v 2. np: 67,3m²
sklep v 1. pp: 9m²
společné prostory (chodby a schodiště): 32,3m²
půda: 51,63m²
dvůr a zahrada: 171,5 m²
Dům je napojen na elektřinu, plyn, vodu, a splaškovou i dešťovou kanalizaci.
Dům se nachází v jižní části městské části Brno – Líšeň na klidné ulici Scheinerova.
V objektu byla započaty udržovací stavební práce.
Dům lze přestavět na 3 bytové jednotky s těmito dispozicemi:
- jednotka č. 1 v 1. NP Byt 3+kk, 88,9m² , dvorek 15m², zahrada 36,46m².
- jednotka č. 2 ve 2. NP Byt 3+kk, 80,2m² , terasa 8,7m², zahrada 36,46m².
- jednotka č. 3 ve 3. NP Byt 3+kk, 74,5m² , terasy 16,0m² + 18,50m² = 34,5m², zahrada 36,1m².
Projekt pro stavební povolení je zpracován.
Možno koupit již dokončený dům:
Zajistíme Vám též odborné poradenství a kompletní právní servis. Samozřejmostí je naprosté bezpečí uzavíraného obchodu za využití notářské či advokátní úschovy.
Pro bližší informace nebo domluvu termínu prohlídky piště na e-mail makléře.
Stávající zastavěná plocha RD: 99,5 m²
Dispozice (podlahové plochy) stávajících jednotek :
byt 01 2+1 v 1. np: 55m²
byt 02 3+1 v 2. np: 67,3m²
sklep v 1. pp: 9m²
společné prostory (chodby a schodiště): 32,3m²
půda: 51,63m²
dvůr a zahrada: 171,5 m²
Dům je napojen na elektřinu, plyn, vodu, a splaškovou i dešťovou kanalizaci.
Dům se nachází v jižní části městské části Brno – Líšeň na klidné ulici Scheinerova.
V objektu byla započaty udržovací stavební práce.
Dům lze přestavět na 3 bytové jednotky s těmito dispozicemi:
- jednotka č. 1 v 1. NP Byt 3+kk, 88,9m² , dvorek 15m², zahrada 36,46m².
- jednotka č. 2 ve 2. NP Byt 3+kk, 80,2m² , terasa 8,7m², zahrada 36,46m².
- jednotka č. 3 ve 3. NP Byt 3+kk, 74,5m² , terasy 16,0m² + 18,50m² = 34,5m², zahrada 36,1m².
Projekt pro stavební povolení je zpracován.
Možno koupit již dokončený dům:
Zajistíme Vám též odborné poradenství a kompletní právní servis. Samozřejmostí je naprosté bezpečí uzavíraného obchodu za využití notářské či advokátní úschovy.
Pro bližší informace nebo domluvu termínu prohlídky piště na e-mail makléře.
Inzerent
- Jméno:
- Veronika Hajn
- Telefon:
- +420775…
- Email:
- haj…
Cenové údaje
- Cena:
- 17 890 000 Kč
Vlastnosti nemovitosti
- Kategorie domu:
- Rodinný dům
- Stav:
- Probíhá rekonstrukce
- Stavba:
- Cihla
- Užitná plocha:
- 215 m²
- Plocha pozemku:
- 271 m²
- PENB:
- G
Umístění nemovitosti
- Katastrální území:
- Líšeň
- Město:
- Brno
- Okres/Obvod:
- Brno-město
- Kraj:
- Jihomoravský kraj
Informace inzerátu
- Vytvořeno:
- 05.01.2026 (před 102 dny)
- Aktualizováno:
- 16.04.2026 (včera)
- Zobrazení:
- 64