Prodej bytu 4+kk 75 m²
VšechoviceNa tento inzerát zatím nikdo nereagoval.
Představujeme Vám Juhyňské zahrádky ve Všechovicích – nový developerský projekt, který přináší moderní a komfortní bydlení v klidné lokalitě s dobrou dostupností do města. Projekt zahrnuje k prodeji 35 BJ různých dispozic od 1+kk až po prostorné 4+kk, takže si zde své vysněné bydlení najde jak jednotlivec, pár nebo rodina s dětmi.
Základní informace o projektu:
Lokalita: Všechovice, klidná část obklopená zelení, dostupnost do měst - Hranice (15min), Valašské Meziříčí (20min), Přerov (25min) a Bystřice pod Hostýnem (13min).
Zahájení výstavby: podzim 2025
Plánované dokončení: polovina roku 2027
Dispozice bytů: 1+kk, 2+kk, 3+kk, 4+kk, ve většině případů se zahrádkou či terasou
Sklepy: ke každému bytu je v ceně sklep
Parkování: Ke každému bytu náleží parkování v ceně
Okolí: Blízkost přírody, cyklostezky, dětská hřiště
Občanská vybavenost Všechovic: Školka, škola, 2 obchody, hospůdka Pastevník, tenisové kurty, fotbalové i víceúčelové hřiště a další.
Proč zvolit bydlení v Juhyňských zahrádkách?
✅ Moderní architektura – nadčasový design a kvalitní materiály
✅ Možnost klientských změn – přizpůsobte si byt podle svých představ
✅ Skvělá investice – ideální jak pro vlastní bydlení, tak pro pronájem
Vysoký standard provedení – energetická náročnost A, tedy opravdu nízké náklady na bydlení.
Technologie: tepelné čerpadlo, podlahové teplovodní vytápění, rekuperace, předokenní žaluzie, plastová izolační okna s trojskly a další.
Způsob prodeje: Při projevení zájmu o koupi bytu se podepisuje Smlouva o smlouvě budoucí kupní, na základě které se skládá 20% z kupní ceny bytu. Následně se dle prostavěnosti platí následující platby:
30% po dokončení hrubé stavby,
40% po dokončení omítek, obkladů a dlažeb,
10% po kolaudaci na základě podpisu Kupní smlouvy.
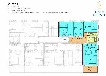
Zde inzerovaný byt č. C30 - 4kk má velikost 75m² + 7m² balkon + 5m² sklad + 1x parkovací stání.
Prodejná cena činí 5.379.250,-Kč vč. DPH.
Kompletní informace o projektu: zadejte do googlu "Juhyňské zahrádky Vševhovice" a klikněte na první stránku.
Byty se předávají kompletně dokončené vč. obkladů, dlažeb, finálních povrchů podlah, sanity, výmalby. Kuchyňskou linku si každý zařizuje sám.
V případě jakýchkoliv dotazů jsem k dispozici.
Základní informace o projektu:
Lokalita: Všechovice, klidná část obklopená zelení, dostupnost do měst - Hranice (15min), Valašské Meziříčí (20min), Přerov (25min) a Bystřice pod Hostýnem (13min).
Zahájení výstavby: podzim 2025
Plánované dokončení: polovina roku 2027
Dispozice bytů: 1+kk, 2+kk, 3+kk, 4+kk, ve většině případů se zahrádkou či terasou
Sklepy: ke každému bytu je v ceně sklep
Parkování: Ke každému bytu náleží parkování v ceně
Okolí: Blízkost přírody, cyklostezky, dětská hřiště
Občanská vybavenost Všechovic: Školka, škola, 2 obchody, hospůdka Pastevník, tenisové kurty, fotbalové i víceúčelové hřiště a další.
Proč zvolit bydlení v Juhyňských zahrádkách?
✅ Moderní architektura – nadčasový design a kvalitní materiály
✅ Možnost klientských změn – přizpůsobte si byt podle svých představ
✅ Skvělá investice – ideální jak pro vlastní bydlení, tak pro pronájem
Vysoký standard provedení – energetická náročnost A, tedy opravdu nízké náklady na bydlení.
Technologie: tepelné čerpadlo, podlahové teplovodní vytápění, rekuperace, předokenní žaluzie, plastová izolační okna s trojskly a další.
Způsob prodeje: Při projevení zájmu o koupi bytu se podepisuje Smlouva o smlouvě budoucí kupní, na základě které se skládá 20% z kupní ceny bytu. Následně se dle prostavěnosti platí následující platby:
30% po dokončení hrubé stavby,
40% po dokončení omítek, obkladů a dlažeb,
10% po kolaudaci na základě podpisu Kupní smlouvy.
Zde inzerovaný byt č. C30 - 4kk má velikost 75m² + 7m² balkon + 5m² sklad + 1x parkovací stání.
Prodejná cena činí 5.379.250,-Kč vč. DPH.
Kompletní informace o projektu: zadejte do googlu "Juhyňské zahrádky Vševhovice" a klikněte na první stránku.
Byty se předávají kompletně dokončené vč. obkladů, dlažeb, finálních povrchů podlah, sanity, výmalby. Kuchyňskou linku si každý zařizuje sám.
V případě jakýchkoliv dotazů jsem k dispozici.
Inzerent
- Jméno:
- Jiří Kaňa
- Telefon:
- +420733…
- Email:
- kan…
Cenové údaje
- Cena:
- 5 379 250 Kč
- Poznámka k ceně:
- vc. skladu a parkovaciho mista vcetne provize RK
Vlastnosti nemovitosti
- Dispozice:
- 4+kk
- Stav:
- Probíhá výstavba
- Vybavenost:
- Nevybavený
- Stavba:
- Cihla
- Podlaží:
- 1. z 3
- Užitná plocha:
- 75 m²
- PENB:
- A
- K dispozici od:
- 01.07.2027 (za 407 dní)
- Vlastnictví:
- Osobní
Umístění nemovitosti
- Město:
- Všechovice
- Okres/Obvod:
- Přerov
- Kraj:
- Olomoucký kraj
Informace inzerátu
- Vytvořeno:
- 03.04.2026 (před 47 dny)
- Aktualizováno:
- 12.05.2026 (před 8 dny)
- Zobrazení:
- 21