Prodej domu 205 m²
Slovácká, OlomoucNa tento inzerát zatím nikdo nereagoval.
Realitní kancelář ALLE reality&development s. r. o. Vám v exkluzivním
zastoupení developera nabízí projekt nízkoenergetických samostatně stojících rodinných
domů v Olomouci. Jedná se o ucelený komplex osmi samostatně stojících domů
o dispozici 4+kk, nebo 5+kk s garáží. Domy jsou zděné, dvoupodlažní s možností mnoha
klientských změn a nadstandardních prvků.
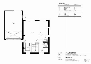
RD 4 o dispozici 4+kk/5+kk má užitnou plochu 205 m² a pozemek 440 m². Dominantou
přízemí je velkorysý obytný prostor s jídelnou, prosvětlený velkoformátovými
okny, se vstupem na terasu a zahradu. V přízemí se dále nachází jeden pokoj
(pracovna/ložnice) s výměrou 13 m², technická místnost, koupelna se
sprchovým koutem a toaletou. V patře se pak nachází tři ložnice s
nadstandardními výměrami a prostorná koupelna s vanou, sprchovým koutem,
dvou umyvadlem + samostatné WC. Garáž o výměře 48 m² má přístup i na
zahradu. Pohodlně zde zaparkujete dvě auta, díky nadstandardní délce garáže zůstává
dostatek úložného prostoru na zahradní techniku, kola a jiné sportovní vybavení.
RD 4 má aktuálně základovou desku, k nastěhování bude v roce 2027.
Projekt rodinných domů je realizovaný v městské části Olomouc – Holice.
Jedná se o klidnou lokalitu poblíž širšího centra města. Lokalita je
oblíbená především pro klidné rodinné bydlení v moderní zástavbě, se
skvělou dopravní obslužností a občanskou vybaveností. V blízkosti projektu
najdete odpočinkovou zónu rybník Amerika. Milovníci přírody jsou za několik
minut v Holickém lese. Poloha lokality zajišťuje vynikající dopravní
dostupnost do centra Olomouce, ale i na dálniční koridory.
Domy splňují veškeré požadavky moderního, komfortního a kvalitního bydlení.
Důraz je kladen na kvalitu materiálů a jednotlivých prvků. Nároční klienti
jistě docení možnost a variabilitu klientských změn. V rámci projektu je
možné žádat o dotaci na pasivní dům s PENB A.
Klient hradí nad rámec kupní ceny poplatek za právní a administrativní servis.
zastoupení developera nabízí projekt nízkoenergetických samostatně stojících rodinných
domů v Olomouci. Jedná se o ucelený komplex osmi samostatně stojících domů
o dispozici 4+kk, nebo 5+kk s garáží. Domy jsou zděné, dvoupodlažní s možností mnoha
klientských změn a nadstandardních prvků.
RD 4 o dispozici 4+kk/5+kk má užitnou plochu 205 m² a pozemek 440 m². Dominantou
přízemí je velkorysý obytný prostor s jídelnou, prosvětlený velkoformátovými
okny, se vstupem na terasu a zahradu. V přízemí se dále nachází jeden pokoj
(pracovna/ložnice) s výměrou 13 m², technická místnost, koupelna se
sprchovým koutem a toaletou. V patře se pak nachází tři ložnice s
nadstandardními výměrami a prostorná koupelna s vanou, sprchovým koutem,
dvou umyvadlem + samostatné WC. Garáž o výměře 48 m² má přístup i na
zahradu. Pohodlně zde zaparkujete dvě auta, díky nadstandardní délce garáže zůstává
dostatek úložného prostoru na zahradní techniku, kola a jiné sportovní vybavení.
RD 4 má aktuálně základovou desku, k nastěhování bude v roce 2027.
Projekt rodinných domů je realizovaný v městské části Olomouc – Holice.
Jedná se o klidnou lokalitu poblíž širšího centra města. Lokalita je
oblíbená především pro klidné rodinné bydlení v moderní zástavbě, se
skvělou dopravní obslužností a občanskou vybaveností. V blízkosti projektu
najdete odpočinkovou zónu rybník Amerika. Milovníci přírody jsou za několik
minut v Holickém lese. Poloha lokality zajišťuje vynikající dopravní
dostupnost do centra Olomouce, ale i na dálniční koridory.
Domy splňují veškeré požadavky moderního, komfortního a kvalitního bydlení.
Důraz je kladen na kvalitu materiálů a jednotlivých prvků. Nároční klienti
jistě docení možnost a variabilitu klientských změn. V rámci projektu je
možné žádat o dotaci na pasivní dům s PENB A.
Klient hradí nad rámec kupní ceny poplatek za právní a administrativní servis.
Inzerent
- Jméno:
- Anna Opluštilová
- Telefon:
- +420792…
- Email:
- ann…
Cenové údaje
- Cena:
- 15 500 000 Kč
- Poznámka k ceně:
- vcetne provize vcetne provize RK
Vlastnosti nemovitosti
- Kategorie domu:
- Rodinný dům
- Stav:
- Novostavba
- Stavba:
- Cihla
- Užitná plocha:
- 205 m²
- Plocha pozemku:
- 440 m²
- PENB:
- B
Umístění nemovitosti
- Město:
- Olomouc
- Okres/Obvod:
- Olomouc
- Kraj:
- Olomoucký kraj
Informace inzerátu
- Vytvořeno:
- 06.03.2026 (před 74 dny)
- Aktualizováno:
- 12.05.2026 (před 7 dny)
- Zobrazení:
- 27