Prodej bytu 2+kk 48 m²
Za sídlištěm, Praha – KomořanyNa tento inzerát zatím nikdo nereagoval.
Na základě výhradního zastoupení vám nabízíme k prodeji útulný byt o dispozici 2+kk 47,64m², který se nachází v 10. patře panelového domu po rekonstrukci v klidné lokalitě Komořany s krásným výhledem do staré zástavby rodinných domů a na les.
Byt je v družstevním vlastnictví se splacenou anuitou, BD dobře hospodaří.
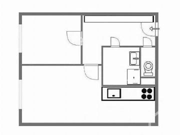
Po vstupu do bytu se nachází předsíň s vestavěnou šatní skříní a předsíňovou stěnou ze které se vchází do jednotlivých místností.
Obývací pokoj je spojen s kuchyňským koutem, který je umístěný ve výklenku. Kuchyňská linka je udržovaná, sporák je elektrický s troubou.
Ložnice je prostorná, vybavená dvoulůžkem a úložným prostorem.
Koupelna a wc jsou po rekonstrukci a mají zděné jádro. Koupelna je opatřena sprchovým koutem a je v ní dostatek prostoru pro pračku. Toaleta je samostatná s úložný prostorem na míru na čistíci prostředky.
Okna jsou plastová opatřená předokenní elektricky ovládanou roletou, na podlahách je lino a dlažba.
V domě jsou k dispozici dva výtahy - jeden je nákladní, kočárkárna/kolárna a k bytu náleží sklep. Dům je po rekonstrukci je zateplený a má novou fasádu.
V místě je kompletní občanská vybavenost: zastávka busu Na Šabatce 139,246, supermarket BILLA, minimarket, restaurace a dětská hřiště. Pro milovníky sportu a přírody je to ideální místo nedaleko lesa a Vltavy - cyklostezka, procházky.
Vřele doporučuji tuto nemovitost pro klidné bydlení i jako investici na pronájem.
Byt lze financovat hypotékou (produkt pro financování družstevních bytů) za podmínek které vám sdělí makléř a hypotéční poradce.
Členem bytového družstva může být fyzická zletilá osoba mající trvalý pobyt v ČR.
Pro více informací a prohlídku kontaktujte RK.
Byt je v družstevním vlastnictví se splacenou anuitou, BD dobře hospodaří.
Po vstupu do bytu se nachází předsíň s vestavěnou šatní skříní a předsíňovou stěnou ze které se vchází do jednotlivých místností.
Obývací pokoj je spojen s kuchyňským koutem, který je umístěný ve výklenku. Kuchyňská linka je udržovaná, sporák je elektrický s troubou.
Ložnice je prostorná, vybavená dvoulůžkem a úložným prostorem.
Koupelna a wc jsou po rekonstrukci a mají zděné jádro. Koupelna je opatřena sprchovým koutem a je v ní dostatek prostoru pro pračku. Toaleta je samostatná s úložný prostorem na míru na čistíci prostředky.
Okna jsou plastová opatřená předokenní elektricky ovládanou roletou, na podlahách je lino a dlažba.
V domě jsou k dispozici dva výtahy - jeden je nákladní, kočárkárna/kolárna a k bytu náleží sklep. Dům je po rekonstrukci je zateplený a má novou fasádu.
V místě je kompletní občanská vybavenost: zastávka busu Na Šabatce 139,246, supermarket BILLA, minimarket, restaurace a dětská hřiště. Pro milovníky sportu a přírody je to ideální místo nedaleko lesa a Vltavy - cyklostezka, procházky.
Vřele doporučuji tuto nemovitost pro klidné bydlení i jako investici na pronájem.
Byt lze financovat hypotékou (produkt pro financování družstevních bytů) za podmínek které vám sdělí makléř a hypotéční poradce.
Členem bytového družstva může být fyzická zletilá osoba mající trvalý pobyt v ČR.
Pro více informací a prohlídku kontaktujte RK.
Inzerent
- Jméno:
- Jana Müllerová
- Telefon:
- +420602…
- Email:
- cc@…
Cenové údaje
- Cena:
- 5 900 000 Kč
- Poznámka k ceně:
- Vcetne provize RK a kompletniho pravniho servisu. vcetne provize RK
Vlastnosti nemovitosti
- Dispozice:
- 2+kk
- Stav:
- Dokončená rekonstrukce
- Vybavenost:
- Vybavený
- Stavba:
- Panel
- Podlaží:
- 10. z 12
- Užitná plocha:
- 48 m²
- PENB:
- B
- K pronájmu od:
- 01.03.2026 (ihned)
- Vlastnictví:
- Družstevní
Umístění nemovitosti
- Katastrální území:
- Komořany
- Město:
- Praha
- Okres/Obvod:
- Praha 12
- Kraj:
- Hlavní město Praha
Informace inzerátu
- Vytvořeno:
- 01.03.2026 (před 46 dny)
- Zobrazení:
- 32